Ecolodge de 16 m² – Le compact malin et durable

Insolite

Confort été/hiver

365 j/an

Bas carbone

PAC réversible

Durabilité
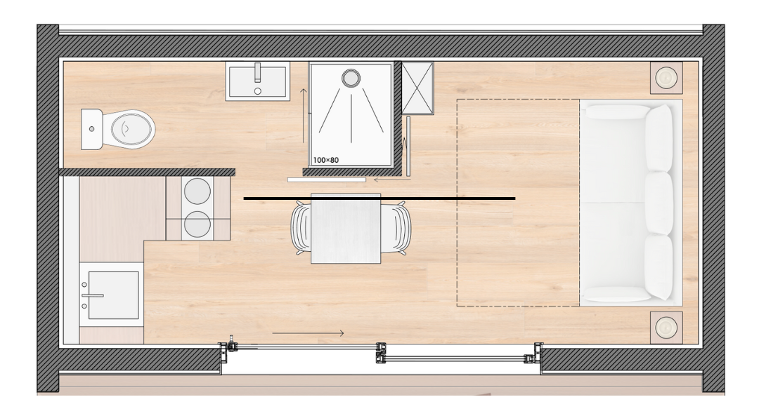
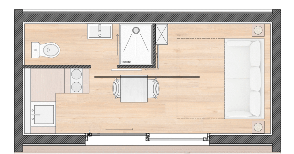
Caractéristiques de l’écolodge
Dimensions
Dimensions extérieures 6,40 x 3,12 m
Dimensions intérieures 5,92 x 2,64 m
Hauteur maxi sous plafond 2,96 m
Hauteur moyenne sous plafond 2,32 m
Hauteur hors tout 3,50 m
Emprise au sol 19,97 m²
Surface utile 15,6 m²
Poids construction ~3 tonnes
Performances thermiques
Epaisseur isolation mur 200 mm
Epaisseur isolation toiture 200 mm
Epaisseur isolation plancher 240 mm
Menuiseries Double vitrage – 7 chambres – Uw 1,2
Surface menuiserie 6,5 m² (24%)
Ventilation VMC double-flux décentralisée
Chauffage – climatisation PAC air/air Thermor – COP 4,00
Performance environementale RE 2020
Consomation énergétique A* / B
Construction
Type construction Plain-pied sur vide sanitaire
Adaptation au sol Pieux hélicoïdaux (hors gel et hors argile)
Plateforme construction Fibre composite (GRP)
Plomberie Multicouche
Cloisons intérieures 73 mm placostil
Façades Panneaux Hardie-Panel – classement feu A2-s1-d0
Résistance intempéries Vent violent, grêle, neige, séisme, retractation argile
Résistance toiture > 500 kg
| 3 Formules à votre disposition | |||
|---|---|---|---|
| Vous être bricoleur, vous savez utiliser une visseuse, perceuse, riveteuse et scie circulaire ! | Vous souhaitez aménager, décorer et personnaliser votre écolodge à votre propre goût ! | Vous souhaitez un écolodge livré et installé prêt pour son utilisation |
|
| Auto-construction | Prêt à finir | Clé en main | |
| Kit gros-oeuvre 25 800 € TTC* ---------------------- Economies** ~ 19 000 € TTC ~ 36 % | Kit gros-œuvre + montage 35 520 € TTC* ------------------------------- Economies** ~ 9 800 € TTC ~ 18,3 % | Entre 44 520 € et 53 160 € TTC Nous consulter pour définir vos besoins d’aménagements intérieurs en fonction de votre projet |
Pour les professionnels, prix dégressifs en fonction de la quantité !
(*) Hors transport, adaptation au sol et raccordement réseaux
(**) Economies réalisées par rapport à une formule « Clé en main » en version studio
Usages possibles
- Chambre d’hôtes insolite : créez un hébergement cocooning pour vos visiteurs, au cœur de la nature.
- Chambre d’hôtel : une alternative compacte et durable pour compléter votre offre d’hébergement.
- Tiny-office : un espace de travail calme et lumineux, propice au télétravail ou à la création.
- Studio indépendant : parfait comme logement complémentaire (ado, étudiant, jeune actif).
- Espace bien-être : installez-y une salle de méditation, de yoga ou de lecture, pour se reconnecter à l’essentiel.
- Pied-à-terre de vacances : une alternative écologique aux mobil-homes ou chalets classiques.
Points forts
- Superficie compacte (16 m²) parfaitement optimisée.
- Conception durable et respectueuse de son environnement.
- Autonomie possible en énergie et en eau (selon options).
- Isolation performante pour un usage 4 saisons.
- Montage rapide, adapté à l’auto-construction.




